10" nástěnné rozvaděče jsou určeny pro instalaci prvků strukturované kabeláže malého rozsahu. Do standardní výbavy tohoto typu rozvaděče patří přední 10“ vertikální lišty, skleněné dveře se zámkem, perforovaný skelet pro lepší odvětrávání a kabelové prostupy ve spodní, horní i zadní části. Rozvaděč je symetrický a jednoduchým otočením lze dosáhnout pravého, nebo levého otevírání dveří. Barevné provedení rozvaděče je šedá RAL 7035.
Rozměry, váha:
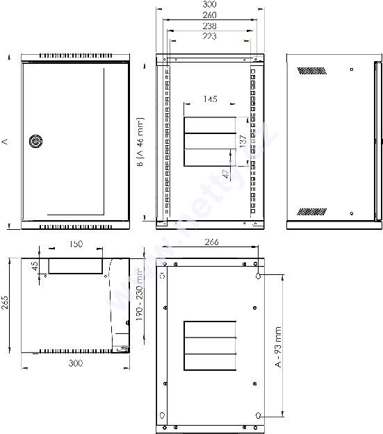
– výška 9U, 488 mm
– šířka 300 mm
– hloubka 265 mm
- váha 11 Kg
Konstrukce:
• nýtovaný skelet s perforací
• přední skleněné dveře s jednobodovým zámkem
• kabelové prostupy ve spodní, horní i zadní části
• 10" vertikální lišty
• v zadní části 4 otvory o průměru 9 mm pro uchycení na stěnu
• dveře otevíratelné v úhlu 180°, skryté panty, možnost volby pravého, nebo levého otevírání
• nosnost 15 kg
• stupeň krytí IP 20
| Parametr | Hodnota |
| Výška [U] | 9 U |
Přihlášení uživatele
Související zboží
Záslepka 10" 1U černá
133,10 Kč
Rozvodný panel 10" 4× 230V
395,67 Kč
Police 10" 1U černá, pevná
232,32 Kč
Alternativní nabídka
Nástěnný rozvaděč 10" 4U RAL 7035 skleněné dveře
2 413,95 Kč
Nástěnný rozvaděč 10" 6U RAL 7035 skleněné dveře
2 949,98 Kč